工程:廣州天盈廣場東塔寫字樓辦公室
面積:300m2


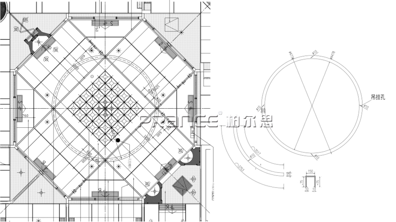
設計采用定制的造型鋁單板,構造出與眾不同的天花效果。顏色選取柏爾思金屬閃銀色,賦予空間高端又檔次,簡潔又美觀,寬敞又通透的氛圍。定做的金屬大圓燈更為整個空間添上高大上,科技感十足的感覺。搭配目前深受設計師青睞的鋁合金墻身快裝系統(tǒng),讓這個裝修效果更具現代感,科技感。抬頭可見小蠻腰, 腳下流淌西江水,在這樣的辦公環(huán)境相信讓優(yōu)秀的白領們更加心曠神怡,思路清晰!
現場效果
現場
現場
施工現場
施工現場
施工現場